realitný maklér
PRIESTRANNÝ 3-IZBOVÝ BYT, BALKÓN, LODŽIA, KARADŽIČOVA
329.599,- €
Splátka hypotéky: 1 259 €/mes.
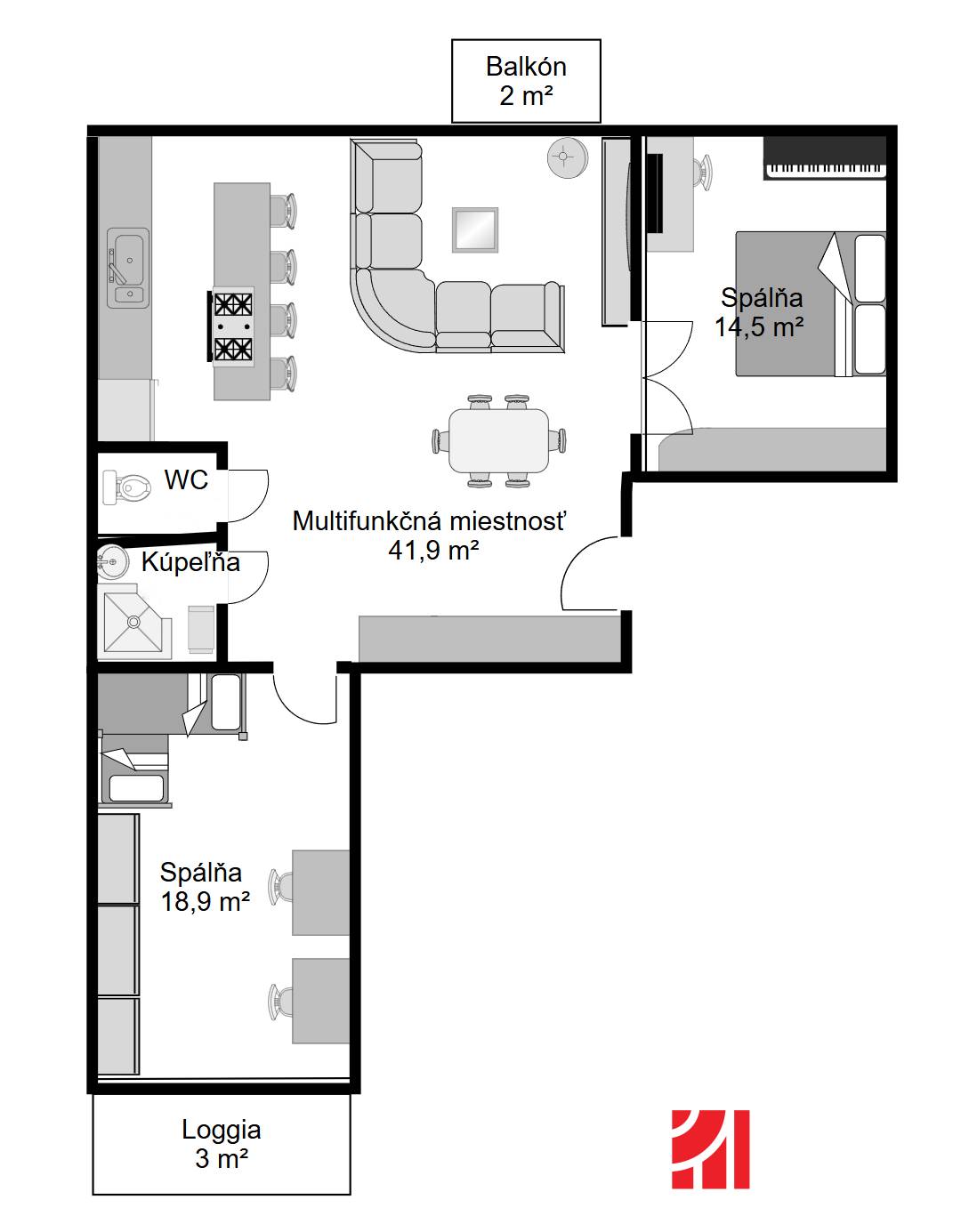
V zastúpení majiteľa ponúkame na predaj priestranný a svetlý 3-izbový byt v atraktívnej lokalite Karadžičova ulica, Staré Mesto – Bratislava. Nachádza sa na 5. poschodí zo 7 v tehlovom bytovom dome s výťahom. Byt je v pôvodnom, ale veľmi zachovalom stave a ponúka výnimočný potenciál na prestavbu podľa predstáv nového majiteľa.
Pri vstupe do bytu vás privíta veľkorysá vstupná chodba s množstvom priestoru a možnosťou využiť ju aj ako úložný či pracovný kút. Chodba je centrálnym bodom, z ktorého sa vstupuje do všetkých miestností. Denná zóna je tvorená samostatnou kuchyňou s komorou a jedálenským kútom, z ktorej sa po menších úpravách dá vytvoriť otvorený priestor s obývačkou. Kuchyňa je orientovaná na východ, do ulice, rovnako ako dve z troch izieb, čo zabezpečuje dostatok ranného svetla.
Obývacia izba má výstup na balkón a je prepojená s ďalšou izbou dvojkrídlovými dverami – ideálne riešenie pre tých, ktorí preferujú flexibilitu medzi spoločenským a súkromným priestorom. Tretia izba, najväčšia z izieb, je orientovaná na západ do tichého vnútrobloku a disponuje výstupom na lodžiu. Všetky miestnosti majú klasické parketové podlahy vo vzore stromček a veľké okná, ktoré zabezpečujú presvetlenie.
Kúpeľňa je vybavená sprchovým kútom, umývadlom, zrkadlovou skrinkou a práčkou. WC je samostatné. Súčasťou bytu je aj praktický sklad/špajza.
Dispozícia bytu umožňuje moderné riešenia – zmena na 4-izbový byt alebo vytvorenie otvorenej obytnej zóny podľa jedného z návrhov alternatívneho pôdorysu. Vysoké stropy (2,75 m) umocňujú vzdušnosť priestoru.
ZÁKLADNÉ ÚDAJE:
* Lokalita: Karadžičova ulica, Staré Mesto – Bratislava
* Poschodie: 5/7 s výťahom
* Úžitková plocha: 83 m²
* Pivnica: 5 m²
* Balkón: 2 m²
* Lodžia: 3,7 m²
* Orientácia: východ (ulica) a západ (dvor)
* Stav: pôvodný
* Konštrukcia: železobetónový skelet s tehlovou výplňou
* Výška stropu: 2,75 m
* Vykurovanie: ústredné, zdroj tepla – kotolňa
* Príprava TUV: súbežne s ÚK
* Mesačné náklady: cca 185 € + elektrina 33 € + plyn 6 €
* Vybavenie: výťah, pivnica, lodžia, balkón
LOKALITA A OKOLIE:
Byt sa nachádza v mimoriadne obľúbenej časti Bratislavy s rýchlou dostupnosťou do centra mesta, ako aj do Ružinova či Nového Mesta. V pešej dostupnosti sú obchodné centrá Nivy, Centrál, mestská tržnica, množstvo služieb, reštaurácií a kaviarní. Nechýba ani blízkosť zastávok MHD, parkov a oddychových zón. Parkovanie je dostupné v rámci rezidentskej zóny priamo pred domom.
CENA: 329.599,-EUR
V cene je zahrnutý kompletný právny a hypotekárny servis, poradenstvo, spracovanie všetkých zmlúv a dokumentácie potrebnej k prevodu.
ID: 818334
© Text je autorským dielom a majetkom 1.BCR s.r.o.
Všetky prezentované údaje zverejnené v tomto inzeráte majú informatívny charakter a žiadnej strane nevzniká nárok na uzatvorenie zmluvy. Spoločnosť 1.BCR s.r.o. nenesie za ich správnosť, úplnosť a presnosť žiadnu zodpovednosť.
Radi Vám poradíme
Úspešne realizované realitné obchody
Prehľad úspešne realizovaných predajov a prenájmov nehnuteľností našimi realitnými maklérmi.
Poslať ponuku na e-mail
Dohodnúť obhliadku
Chcem získať najvýhodnejšiu hypotéku!
Spolupracujeme s profesionálmi a dokážeme vám vďaka tomu vybaviť najvýhodnejšiu hypotéku, nechajte si zaslať od nás ponuku.
Súhlas so spracovaním osobných údajov
Dotknutá osoba v súlade s príslušnými ustanoveniami zákona č. 18/2018 Z.z. o ochrane osobných údajov a o zmene a doplnení niektorých zákonov v znení neskorších predpisov (ďalej len ,,ZoOOÚ“) potvrdzuje správnosť a aktuálnosť svojich osobných údajov uvedených v kontaktom formulári. Dotknutá osoba týmto čestne vyhlasuje, že udeľuje prevádzkovateľovi svoj výslovný, slobodný, vážny a bezvýhradný súhlas so spracúvaním jej osobných údajov v rozsahu: meno, priezvisko, telefonický kontakt, e-mailová adresa na účel kontaktovania dotknutej osoby ako záujemcu o spoluprácu v informačnom systéme sprostredkovateľa ,,klienti“ počas doby 180 dní od udelenia tohto súhlasu. Dotknutá osoba má právo kedykoľvek odvolať tento súhlas so spracovaním osobných údajov rovnakým spôsobom, akým ho udelila. Odvolanie súhlasu nemá vplyv na zákonnosť spracúvania osobných údajov založeného na súhlase pred jeho odvolaním. Práva dotknutej osoby vymedzujú najmä §§ 19 – 30 ZoOOÚ. Práva a povinnosti sprostredkovateľa, ako prevádzkovateľa, vymedzujú najmä §§ 31 – 46 ZoOOÚ. Dotknutá osoba potvrdzuje, že sprostredkovateľ splnil svoju oznamovaciu povinnosť v rozsahu požadovanom ZoOOÚ. Dotknutá osoba berie na vedomie, že na zabezpečenie toho, že spracúvanie jej osobných údajov sa vykonáva v súlade so ZoOOÚ sprostredkovateľ prijal primerané technické, organizačné a personálne opatrenia zodpovedajúce spôsobu spracúvania osobných údajov, pričom zobral do úvahy najmä použiteľné technické prostriedky, dôvernosť a dôležitosť spracúvaných osobných údajov, ako aj rozsah možných rizík, ktoré sú spôsobilé narušiť bezpečnosť alebo funkčnosť jeho informačných systémov. Sprostredkovateľ bude s osobnými údajmi dotknutej osoby zaobchádzať a nakladať v súlade s platnými a účinnými právnymi predpismi.


















