PREDANÉ - ŠTÝLOVO ZARIADENÝ 4 IZB. DOM S PRÍSTUPOM K JAZERU

predané

195.000,- €

Splátka hypotéky: 745 €/mes.


Rodinný dom 106 m² Hrubá Borša

VIDEO OBHLIADKA -> https://youtu.be/K7vMyMaw8jY

OPIS:
Ponúkame Vám v exkluzívnom zastúpení na predaj 4 izbový rodinný dom v Hrubej Borši v blízkosti golfového ihriska a v lukratívnej lokalite s vlastným mólom a vstupom do čistého jazera určeného na kúpanie a trávenie voľných chvíľ so svojimi najbližšími.
Dom bol postavený z kvalitných materiálov: Tehla /30ka - Pezinské tehelne/; zateplenie - polystyrén 15cm; strecha zateplenie - 30cm a podlaha - 10cm;okná plastové ideál 8000 -/6 komorové, troj-sklo/, kvalitné laminátové podlahy a dlažby.
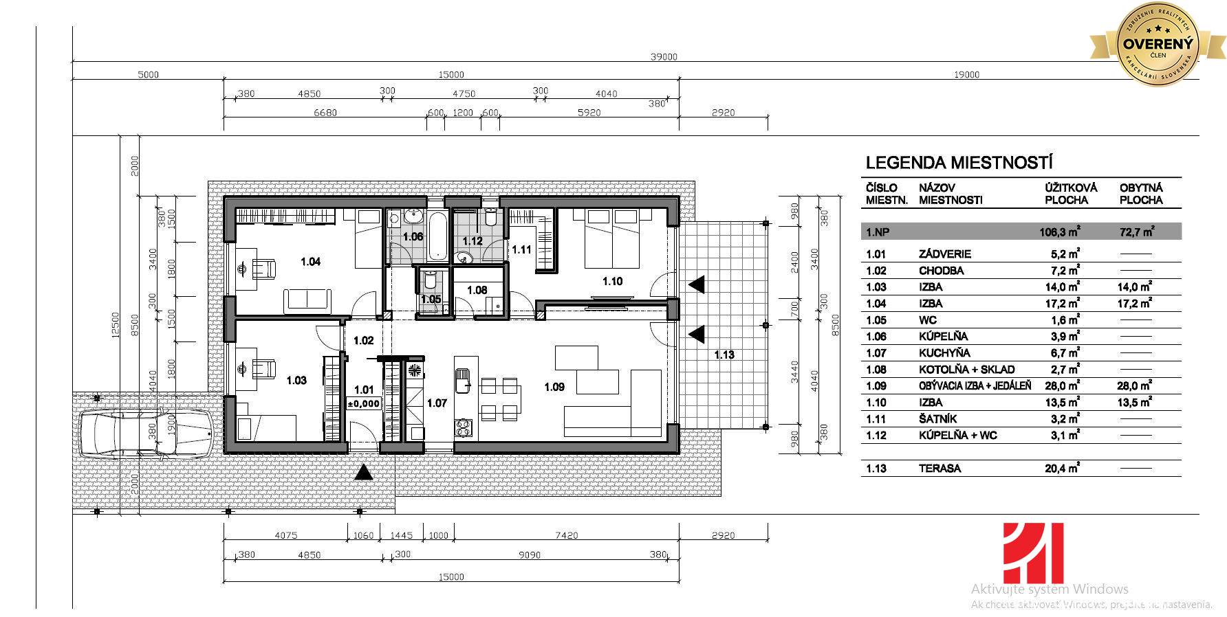
Tento štýlovo zariadený dom je výborne dispozične riešený - vstupná chodba dáva dostatok priestoru na privítanie svojich hostí a je vybavená skriňou, kde si odložíte všetky potrebné veci. Z chodby sa dostávame do spoločného priestoru, kde nájdete hneď dve samostatné izby /1 - nezariadená; 2 - kompletne zariadená s posteľou a veľkou skriňou/. Priestranná obývačka je prepojená s kuchyňou a jedálenskou časťou, takže všetky chvíle so svojimi najbližšími môžete stráviť spolu. Z obývačky sa dostanete do kompletne zariadenej spálne, ktorá ma východ na terasu a taktiež aj vlastnú kúpeľňu so sprchovým kútom, záchodom a umývadlom. Pre hostí je určený samostatný záchod a samostatná kúpeľňa s vaňou. Na práčku, sušičku a ostatné technické záležitosti máte k dispozícií technickú miestnosť, kde si môžete odložiť úplne všetko čo potrebujete na údržbu domu.
Z obývačky sa dostanete veľkými dverami na terasu o veľkosti 20,4m2, so záhradným nábytkom a miestom na gril. Schovať sa môžete pod markízou, ktorú si môžete rozprestrieť kedykoľvek uznáte za vhodné. Pozemok je zaujímavo riešený a lepší obraz si spravíte pozretím si fotiek z vtáčej perspektívy. Pod pozemkom sa nachádza pivničná kobka o veľkosti 7,50m2, ktorá slúži na odkladanie si záhradnej techniky. Na pozemku bol položený trávnik a postaráte sa oň vďaka automatickej závlahe.
Z pozemku máte privátny vstup do čistého jazera, kde sa môžete okúpať a tráviť letné dni.

ZÁKLADNÉ ÚDAJE:
* lokalita: Hrubá Borša - exkluzívna lokalita pri golfovom areáli
* počet izieb: 4
* počet kúpeľní: 2
* počet WC: 2
* typ rodinného domu: bungalov
* celková úžitková plocha: 106
* plocha pozemku: 487 m2

POPIS NEHNUTEĽNOSTI A PRÍSLUŠENSTVO:
* nový nábytok /okrem TV a domáceho kina/
* funkčné kachle s vývodom na strechu
* kompletne zariadená nová kuchynská linka s vysokým leskom so spotrebičmi /sporák, rúra, chladnička, umývačka/
* jedálenský stôl, 2x barové stoličky, sedacia súprava
* 3 samostatné izby - z toho dve kompletne zariadené
* 2 x kúpelňa / hosťovská - vaňa a umývadlo; spálňová - sprchový kút, záchod a umývadlo/
* parkovanie pred domom pre dve autá
* kompletné oplotenie domu
* prístup z vlastného pozemku do vody s možnosťou kúpania sa
* trávnik s automatickou závlahou
* vybudovaná terasa s markízou
* pivničná kobka o veľkosti 7,5m2 so samostatným vchodom


OKOLIE:
* v areáli pri golfovom ihrisku, zeleň, jazero na kúpanie, vlastné mólo
* 30 minút od Bratislavy, 10 minút od Senca

CELKOVÝ DOJEM:
* kompletne dokončený a zariadený dom s vlastným prístupom do čistého jazera s možnosťou kúpania.
* kvalitný materiál a zariadenie v cene dom
* ideálne pre milovníkov golfu, ale taktiež aj pre rodinky, ktoré si potrpia na kvalitu

CENA : 195.000 Eur vrátane nábytku a zariadenia

V cene je zahrnutý bezplatný právny servis, spracovanie zmluvy o budúcej zmluve, kúpno-predajnej zmluvy a návrhu na vklad do katastra. Zaplatíme za Vás poplatky za podanie návrhu na vklad do katastra, správne poplatky za výpis z listu vlastníctva a poplatky za overenie podpisov na kúpnych zmluvách. Zdarma je Vám k dispozícii náš hypotekárny špecialista, ktorý dokáže zariadiť nižší úrok a lepšie podmienky ako klientovi ponúknu na pobočke. Naše služby Vás nič nestoja. Naopak, šetríme Vám to najdôležitejšie - Váš čas!

ID.: 500040

© Text a fotografie sú autorským dielom a majetkom 1.BRATISLAVSKÉHO CENTRA REALÍT.

Podrobné informácie

vrátane provízie
neuvedené
1
4
106 m²
487 m²

Zobraziť všetky



Lukáš Machotka, MBA, RSc.

realitný maklér


Radi Vám poradíme



Lukáš Machotka, MBA, RSc.

Úspešne realizované realitné obchody

Prehľad úspešne realizovaných predajov a prenájmov nehnuteľností našimi realitnými maklérmi.

Poslať správu Zavolať

Poslať ponuku na e-mail

Dohodnúť obhliadku

Čas obhliadky

1. termín

2. termín

Chcem získať najvýhodnejšiu hypotéku!


Spolupracujeme s profesionálmi a dokážeme vám vďaka tomu vybaviť najvýhodnejšiu hypotéku, nechajte si zaslať od nás ponuku.

Súhlas so spracovaním osobných údajov

Dotknutá osoba v súlade s príslušnými ustanoveniami zákona č. 18/2018 Z.z. o ochrane osobných údajov a o zmene a doplnení niektorých zákonov v znení neskorších predpisov (ďalej len ,,ZoOOÚ“) potvrdzuje správnosť a aktuálnosť svojich osobných údajov uvedených v kontaktom formulári. Dotknutá osoba týmto čestne vyhlasuje, že udeľuje prevádzkovateľovi svoj výslovný, slobodný, vážny a bezvýhradný súhlas so spracúvaním jej osobných údajov v rozsahu: meno, priezvisko, telefonický kontakt, e-mailová adresa na účel kontaktovania dotknutej osoby ako záujemcu o spoluprácu v informačnom systéme sprostredkovateľa ,,klienti“ počas doby 180 dní od udelenia tohto súhlasu. Dotknutá osoba má právo kedykoľvek odvolať tento súhlas so spracovaním osobných údajov rovnakým spôsobom, akým ho udelila. Odvolanie súhlasu nemá vplyv na zákonnosť spracúvania osobných údajov založeného na súhlase pred jeho odvolaním. Práva dotknutej osoby vymedzujú najmä §§ 19 – 30 ZoOOÚ. Práva a povinnosti sprostredkovateľa, ako prevádzkovateľa, vymedzujú najmä §§ 31 – 46 ZoOOÚ. Dotknutá osoba potvrdzuje, že sprostredkovateľ splnil svoju oznamovaciu povinnosť v rozsahu požadovanom ZoOOÚ. Dotknutá osoba berie na vedomie, že na zabezpečenie toho, že spracúvanie jej osobných údajov sa vykonáva v súlade so ZoOOÚ sprostredkovateľ prijal primerané technické, organizačné a personálne opatrenia zodpovedajúce spôsobu spracúvania osobných údajov, pričom zobral do úvahy najmä použiteľné technické prostriedky, dôvernosť a dôležitosť spracúvaných osobných údajov, ako aj rozsah možných rizík, ktoré sú spôsobilé narušiť bezpečnosť alebo funkčnosť jeho informačných systémov. Sprostredkovateľ bude s osobnými údajmi dotknutej osoby zaobchádzať a nakladať v súlade s platnými a účinnými právnymi predpismi.

Súhlas so spracovaním osobných údajov

1.BCR Newsletter



Overený člen Združenia realitných kancelárií Slovenska RU

Od roku 2015 sme vašim dôveryhodným partnerom v Bratislave s vyše 500 úspešnými transakciami. Ponúkame kompletný realitný servis - od trhovej analýzy až po hypotekárne poradenstvo. V našom tíme panuje rodinná atmosféra a etika je na prvom mieste. Sme hrdými členmi ZRKS a Realitnej únie SR. Vyskúšajte nás a zažite reality srdcom!


Súhlas so spracovaním osobných údajov

Dotknutá osoba v súlade s príslušnými ustanoveniami zákona č. 18/2018 Z.z. o ochrane osobných údajov a o zmene a doplnení niektorých zákonov v znení neskorších predpisov (ďalej len ,,ZoOOÚ“) potvrdzuje správnosť a aktuálnosť svojich osobných údajov uvedených v kontaktom formulári. Dotknutá osoba týmto čestne vyhlasuje, že udeľuje prevádzkovateľovi svoj výslovný, slobodný, vážny a bezvýhradný súhlas so spracúvaním jej osobných údajov v rozsahu: meno, priezvisko, telefonický kontakt, e-mailová adresa na účel kontaktovania dotknutej osoby ako záujemcu o spoluprácu v informačnom systéme sprostredkovateľa ,,klienti“ počas doby 180 dní od udelenia tohto súhlasu. Dotknutá osoba má právo kedykoľvek odvolať tento súhlas so spracovaním osobných údajov rovnakým spôsobom, akým ho udelila. Odvolanie súhlasu nemá vplyv na zákonnosť spracúvania osobných údajov založeného na súhlase pred jeho odvolaním. Práva dotknutej osoby vymedzujú najmä §§ 19 – 30 ZoOOÚ. Práva a povinnosti sprostredkovateľa, ako prevádzkovateľa, vymedzujú najmä §§ 31 – 46 ZoOOÚ. Dotknutá osoba potvrdzuje, že sprostredkovateľ splnil svoju oznamovaciu povinnosť v rozsahu požadovanom ZoOOÚ. Dotknutá osoba berie na vedomie, že na zabezpečenie toho, že spracúvanie jej osobných údajov sa vykonáva v súlade so ZoOOÚ sprostredkovateľ prijal primerané technické, organizačné a personálne opatrenia zodpovedajúce spôsobu spracúvania osobných údajov, pričom zobral do úvahy najmä použiteľné technické prostriedky, dôvernosť a dôležitosť spracúvaných osobných údajov, ako aj rozsah možných rizík, ktoré sú spôsobilé narušiť bezpečnosť alebo funkčnosť jeho informačných systémov. Sprostredkovateľ bude s osobnými údajmi dotknutej osoby zaobchádzať a nakladať v súlade s platnými a účinnými právnymi predpismi.