PREDANÉ! UŽÍVAJTE SI NAJKRAJŠIE ZÁPADY SLNKA PRIAMO Z VÁŠHO BYTU

predané

Cena v RK

Splátka hypotéky: 0 €/mes.


2-izbový byt 56.73 m² Továrenská, Bratislava - Staré Mesto

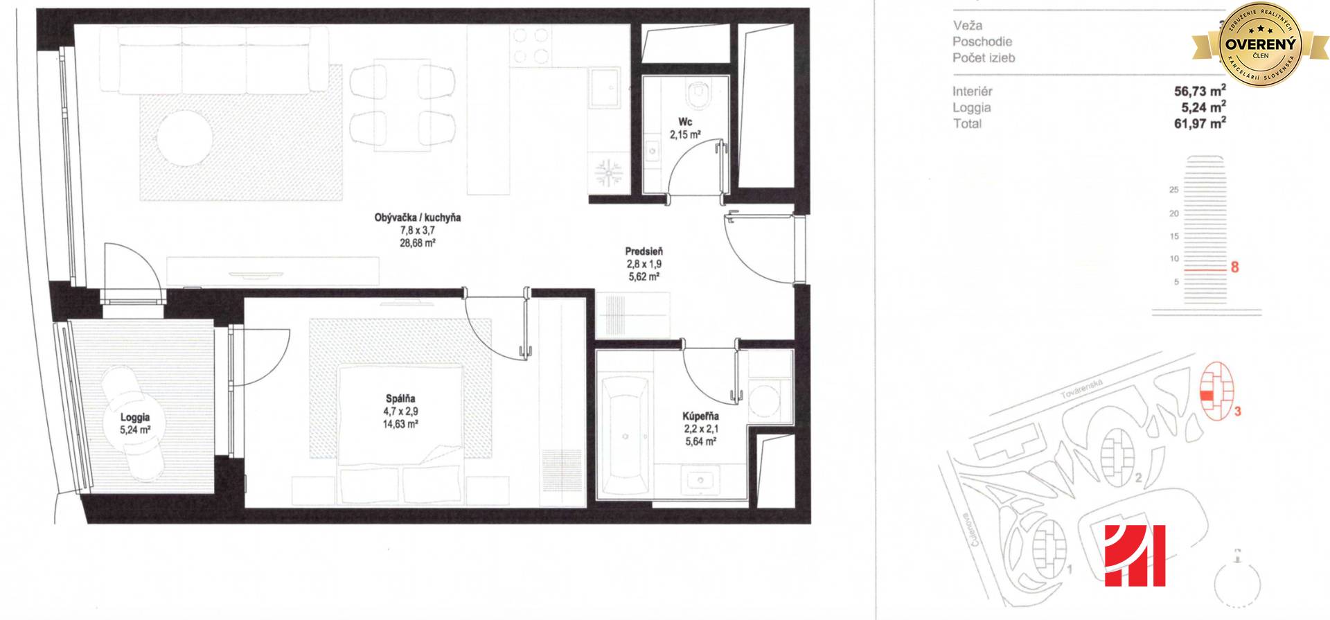
Bývajte v projekte SKY PARK už tento rok! Ponúkame na predaj 2-izbový byt v jedinečnom projekte SKY PARK by Zaha Hadid (Bratislava - Staré Mesto). Byt sa nachádza na 8. poschodí 3. veže s orientáciou na západ, čo zaručí nerušený výhľad na mesto. Ak hľadáte byt s výbornou polohou v centra hlavného mesta, s kompletnou občianskou vybavenosťou a v nadčasovom projekte v nadštandardnom prevedení, ste na správnom mieste.

Dispozične pozostáva z predsiene s prechodom do otvorenej obývacej izby spojenej s kuchyňou a spálne, z ktorej je vstup do kúpeľne, toaleta je samostatná. Výstup na loggiu je možný z oboch miestností. Vybavenie bytu by sa pokojne mohlo označiť za nadštandard - drevené podlahy v obytných miestnostiach, gresová dlažba v kúpeľni a vo WC, bezfalcové interiérové dvere, hliníkové okná s izolačným trojsklom, ktoré krásne presvetlia celý priestor. V objekte sú štyri centrálne vetracie jednotky s rekuperáciou, ktoré zabezpečujú mechanické vetranie bytov. V prípade záujmu si môžete zakúpiť garážové státie (suchou nohou do bytu).

ZÁKLADNÉ ÚDAJE:
* lokalita: Továrenská ulica, Bratislava - Staré Mesto
* počet izieb: 2
* výťah: áno
* poschodie: 8/30
* celková plocha: 61,97 m²
* obytná plocha: 56,73 m²
* loggia: 5,24 m²
* stav: novostavba
* možnosť dokúpiť garážové státie. V prípade záujmu je možné odkúpiť dve garážové státia.
* možnosť dokúpiť murovanú pivničnú kobku

LOKALITA A OKOLIE:
Projekt SKY PARK sa nachádza v srdci nového downtownu Bratislavy. Vďaka svojej strategickej polohe nájdete v okolí všetky služby, rýchle napojenie na mestský obchvat a priestor pre kultúru či šport, zastávky MHD (linka č. 50, 68, 70, 78, 88) autobusovú stanicu a mnoho ďalších. Nákupné centrum EUROVEA (5 minút chôdze) je jedno z najexkluzívnejších nákupných centier, ktoré sa rozprestiera na brehu Dunaja a ponúka 181 obchodov, 39 reštaurácií, detské ihriská, kino alebo jednoducho relax v podobe prechádzky promenádou pri Dunaji. Ak ste milovníkmi kultúry, do 5 minút chôdze nájdete Nové SND. Blízkosť historického centra môžete využiť na príjemné prechádzky či večerné posedenie pri víne vo svojom obľúbenom podniku.

CELKOVÝ DOJEM:
Výborný byt so skvelou polohou zaručí ideálne bývanie pre dynamických ľudí, ktorí vyhľadávajú bývanie v centre. Taktiež je to skvelá investícia na rýchly prenájom bytu.

CENA: CENA DOHODOU - v prípade záujmu nás kontaktujte
V cene je zahrnutý bezplatný právny servis, spracovanie zmluvy o budúcej zmluve, kúpno-predajnej zmluvy a návrhu na vklad do katastra. Zaplatíme za Vás poplatky za podanie návrhu na vklad do katastra, správne poplatky za výpis z listu vlastníctva a poplatky za overenie podpisov na kúpnych zmluvách. Zdarma je Vám k dispozícii náš hypotekárny špecialista, ktorý dokáže zariadiť nižší úrok a lepšie podmienky ako klientovi ponúknu na pobočke. Naše služby Vás nič nestoja. Naopak, šetríme Vám to najdôležitejšie - Váš čas!

ID: 81807213

© Text je autorským dielom a majetkom 1.BCR REALITY s. r. o.
Všetky prezentované údaje zverejnené v tomto inzeráte majú informatívny charakter a žiadnej strane nevzniká nárok na uzatvorenie zmluvy. Spoločnosť 1.BCR s.r.o. nenesie za ich správnosť, úplnosť a presnosť žiadnu zodpovednosť.

Podrobné informácie

8
30
2
61.97 m²
56.73 m²
osobné

Zobraziť všetky



Nikoleta Ivančíková, RSc.

realitný maklér


Radi Vám poradíme



Nikoleta Ivančíková, RSc.

Úspešne realizované realitné obchody

Prehľad úspešne realizovaných predajov a prenájmov nehnuteľností našimi realitnými maklérmi.

Poslať správu Zavolať

Poslať ponuku na e-mail

Dohodnúť obhliadku

Čas obhliadky

1. termín

2. termín

Chcem získať najvýhodnejšiu hypotéku!


Spolupracujeme s profesionálmi a dokážeme vám vďaka tomu vybaviť najvýhodnejšiu hypotéku, nechajte si zaslať od nás ponuku.

Súhlas so spracovaním osobných údajov

Dotknutá osoba v súlade s príslušnými ustanoveniami zákona č. 18/2018 Z.z. o ochrane osobných údajov a o zmene a doplnení niektorých zákonov v znení neskorších predpisov (ďalej len ,,ZoOOÚ“) potvrdzuje správnosť a aktuálnosť svojich osobných údajov uvedených v kontaktom formulári. Dotknutá osoba týmto čestne vyhlasuje, že udeľuje prevádzkovateľovi svoj výslovný, slobodný, vážny a bezvýhradný súhlas so spracúvaním jej osobných údajov v rozsahu: meno, priezvisko, telefonický kontakt, e-mailová adresa na účel kontaktovania dotknutej osoby ako záujemcu o spoluprácu v informačnom systéme sprostredkovateľa ,,klienti“ počas doby 180 dní od udelenia tohto súhlasu. Dotknutá osoba má právo kedykoľvek odvolať tento súhlas so spracovaním osobných údajov rovnakým spôsobom, akým ho udelila. Odvolanie súhlasu nemá vplyv na zákonnosť spracúvania osobných údajov založeného na súhlase pred jeho odvolaním. Práva dotknutej osoby vymedzujú najmä §§ 19 – 30 ZoOOÚ. Práva a povinnosti sprostredkovateľa, ako prevádzkovateľa, vymedzujú najmä §§ 31 – 46 ZoOOÚ. Dotknutá osoba potvrdzuje, že sprostredkovateľ splnil svoju oznamovaciu povinnosť v rozsahu požadovanom ZoOOÚ. Dotknutá osoba berie na vedomie, že na zabezpečenie toho, že spracúvanie jej osobných údajov sa vykonáva v súlade so ZoOOÚ sprostredkovateľ prijal primerané technické, organizačné a personálne opatrenia zodpovedajúce spôsobu spracúvania osobných údajov, pričom zobral do úvahy najmä použiteľné technické prostriedky, dôvernosť a dôležitosť spracúvaných osobných údajov, ako aj rozsah možných rizík, ktoré sú spôsobilé narušiť bezpečnosť alebo funkčnosť jeho informačných systémov. Sprostredkovateľ bude s osobnými údajmi dotknutej osoby zaobchádzať a nakladať v súlade s platnými a účinnými právnymi predpismi.

Súhlas so spracovaním osobných údajov

1.BCR Newsletter



Overený člen Združenia realitných kancelárií Slovenska RU

Od roku 2015 sme vašim dôveryhodným partnerom v Bratislave s vyše 500 úspešnými transakciami. Ponúkame kompletný realitný servis - od trhovej analýzy až po hypotekárne poradenstvo. V našom tíme panuje rodinná atmosféra a etika je na prvom mieste. Sme hrdými členmi ZRKS a Realitnej únie SR. Vyskúšajte nás a zažite reality srdcom!


Súhlas so spracovaním osobných údajov

Dotknutá osoba v súlade s príslušnými ustanoveniami zákona č. 18/2018 Z.z. o ochrane osobných údajov a o zmene a doplnení niektorých zákonov v znení neskorších predpisov (ďalej len ,,ZoOOÚ“) potvrdzuje správnosť a aktuálnosť svojich osobných údajov uvedených v kontaktom formulári. Dotknutá osoba týmto čestne vyhlasuje, že udeľuje prevádzkovateľovi svoj výslovný, slobodný, vážny a bezvýhradný súhlas so spracúvaním jej osobných údajov v rozsahu: meno, priezvisko, telefonický kontakt, e-mailová adresa na účel kontaktovania dotknutej osoby ako záujemcu o spoluprácu v informačnom systéme sprostredkovateľa ,,klienti“ počas doby 180 dní od udelenia tohto súhlasu. Dotknutá osoba má právo kedykoľvek odvolať tento súhlas so spracovaním osobných údajov rovnakým spôsobom, akým ho udelila. Odvolanie súhlasu nemá vplyv na zákonnosť spracúvania osobných údajov založeného na súhlase pred jeho odvolaním. Práva dotknutej osoby vymedzujú najmä §§ 19 – 30 ZoOOÚ. Práva a povinnosti sprostredkovateľa, ako prevádzkovateľa, vymedzujú najmä §§ 31 – 46 ZoOOÚ. Dotknutá osoba potvrdzuje, že sprostredkovateľ splnil svoju oznamovaciu povinnosť v rozsahu požadovanom ZoOOÚ. Dotknutá osoba berie na vedomie, že na zabezpečenie toho, že spracúvanie jej osobných údajov sa vykonáva v súlade so ZoOOÚ sprostredkovateľ prijal primerané technické, organizačné a personálne opatrenia zodpovedajúce spôsobu spracúvania osobných údajov, pričom zobral do úvahy najmä použiteľné technické prostriedky, dôvernosť a dôležitosť spracúvaných osobných údajov, ako aj rozsah možných rizík, ktoré sú spôsobilé narušiť bezpečnosť alebo funkčnosť jeho informačných systémov. Sprostredkovateľ bude s osobnými údajmi dotknutej osoby zaobchádzať a nakladať v súlade s platnými a účinnými právnymi predpismi.