SKOLAUDOVANÉ! NOVOSTAVBA 4–IZB. BUNGALOV, POZEMOK 571 m²,VEĽKÉ BLAHOVO

vrátane provízie, možnosť HÚ

259.000,- €

Splátka hypotéky: 989 €/mes.


Rodinný dom 148.15 m² Veľké Blahovo

Ponúkame Vám na predaj novostavbu, moderný samostatne stojací 4 – izbový rodinný dom – bungalov, ktorý sa nachádza v obci Veľké Blahovo, ktoré je vzdialene len 3 km od okresného mesta Dunajská Streda. Dom sa rozprestiera na pozemku o výmere 571 m² a je na samostatnej súkromnej ulici s možnosťou si uzavrieť vstup vlastnou bránou. K domu prislúcha priestranná zastrešená terasa a 3 vonkajšie parkovacie státia.
V dome sú veľkoformátové okná, ktoré zabezpečujú dostatok denného svetla. Predpríprava na klimatizáciu, krb a možnosť vybudovať si bazén. Dom sa predáva vo vyhotovení štandard aj s dokončenými kúpeľňami a s alarmom Jablotron.

ZÁKLADNÉ ÚDAJE:
* Lokalita: Veľké Blahovo
* Materiál: Tehla
* Zateplenie: Áno – 20 cm polystyrén
* Počet izieb: 4
* Pivnica: Nie
* Garáž: Nie
* Bezbarierový prístup: Áno
* Parkovanie: pre 3 autá
* Terasa: Áno
* IS: Voda, elektrina, kanalizácia
* Vykurovanie: Podlahové – elektrické
* Okná: 3 sklo

VÝMERA:
* Plocha pozemku: 571 m²
* Zastavaná plocha: 183,65 m²
* Úžitková plocha: 148,15m²
* Terasa: 29,13m²
* Záhrada: 387,35 m²

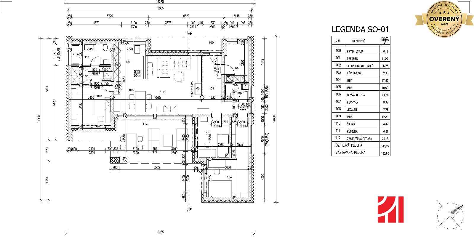
DISPOZÍCIA DOMU:
* Krytý vstup do domu: 6,12 m²
* Vstupná chodba: 11,00 m²
* Technická miestnosť: 6,75 m²
* Kúpeľňa s WC a umyvadlom: 2,93 m²
* Izba: 17,52 m²
* Izba: 10,00 m²
* Obývacia izba spojená s kuchyňou, jedálňou a so vstupom na terasu: 41,11 m²
- z toho (obývacia izba: 24,36 m² , kuchyňa: 8,97 m² , jedáleň: 7,78 m²)
* Zastrešená terasa: 29,13 m²
* Izba: 12,80 m²
* Šatník: 4,47 m²
* Kúpeľňa s vaňou, sprchovacím kútom, WC a umývadlom: 6,31 m²

LOKALITA A OKOLIE:
Obec Veľké Blahovo ponúka základnú občiansku vybavenosť, ktorá zahŕňa potraviny, pohostinstvo, materskú školu a základnú školu pre nižšie ročníky. V blízkom okresnom meste Dunajská Streda (vzdialené len 5 minút autom) nájdete kompletné služby vrátane obchodných centier, supermarketov, reštaurácií, kaviarní, zdravotného strediska, lekární, bánk a pošty.
Obec má výborné dopravné napojenie – cez Dunajskú Stredu prechádza železničná trať Bratislava – Komárno, čo zaisťuje rýchly prístup do hlavného mesta. Autom sa do centra Bratislavy dostanete približne za 30 minút, pričom blízka rýchlostná cesta R7 umožňuje plynulú dopravu.
V blízkej Dunajskej Strede sa nachádza známe termálne kúpalisko Thermalpark, športoviská, wellness centrá a moderné rekreačné zóny.

CENA: 259 000 €

ID: 81811470

V cene je zahrnutý právny a hypotekárny servis, poradenstvo, spracovanie všetkých zmlúv a dokumentácie potrebnej k prevodu.
© Text a fotografie sú autorským dielom a majetkom 1.BCR GROUP
Všetky prezentované údaje zverejnené v tomto inzeráte majú informatívny charakter a žiadnej strane nevzniká nárok na uzatvorenie zmluvy. Spoločnosť 1.BCR s.r.o. nenesie za ich správnosť, úplnosť a presnosť žiadnu zodpovednosť.

Podrobné informácie

vrátane provízie
prízemie
1
4
183.65 m²
177.28 m²

Zobraziť všetky



Filip Miškovský, RSc.

realitný maklér


Radi Vám poradíme



Filip Miškovský, RSc.

Úspešne realizované realitné obchody

Prehľad úspešne realizovaných predajov a prenájmov nehnuteľností našimi realitnými maklérmi.

Poslať správu Zavolať

Poslať ponuku na e-mail

Dohodnúť obhliadku

Čas obhliadky

1. termín

2. termín

Chcem získať najvýhodnejšiu hypotéku!


Spolupracujeme s profesionálmi a dokážeme vám vďaka tomu vybaviť najvýhodnejšiu hypotéku, nechajte si zaslať od nás ponuku.

Súhlas so spracovaním osobných údajov

Dotknutá osoba v súlade s príslušnými ustanoveniami zákona č. 18/2018 Z.z. o ochrane osobných údajov a o zmene a doplnení niektorých zákonov v znení neskorších predpisov (ďalej len ,,ZoOOÚ“) potvrdzuje správnosť a aktuálnosť svojich osobných údajov uvedených v kontaktom formulári. Dotknutá osoba týmto čestne vyhlasuje, že udeľuje prevádzkovateľovi svoj výslovný, slobodný, vážny a bezvýhradný súhlas so spracúvaním jej osobných údajov v rozsahu: meno, priezvisko, telefonický kontakt, e-mailová adresa na účel kontaktovania dotknutej osoby ako záujemcu o spoluprácu v informačnom systéme sprostredkovateľa ,,klienti“ počas doby 180 dní od udelenia tohto súhlasu. Dotknutá osoba má právo kedykoľvek odvolať tento súhlas so spracovaním osobných údajov rovnakým spôsobom, akým ho udelila. Odvolanie súhlasu nemá vplyv na zákonnosť spracúvania osobných údajov založeného na súhlase pred jeho odvolaním. Práva dotknutej osoby vymedzujú najmä §§ 19 – 30 ZoOOÚ. Práva a povinnosti sprostredkovateľa, ako prevádzkovateľa, vymedzujú najmä §§ 31 – 46 ZoOOÚ. Dotknutá osoba potvrdzuje, že sprostredkovateľ splnil svoju oznamovaciu povinnosť v rozsahu požadovanom ZoOOÚ. Dotknutá osoba berie na vedomie, že na zabezpečenie toho, že spracúvanie jej osobných údajov sa vykonáva v súlade so ZoOOÚ sprostredkovateľ prijal primerané technické, organizačné a personálne opatrenia zodpovedajúce spôsobu spracúvania osobných údajov, pričom zobral do úvahy najmä použiteľné technické prostriedky, dôvernosť a dôležitosť spracúvaných osobných údajov, ako aj rozsah možných rizík, ktoré sú spôsobilé narušiť bezpečnosť alebo funkčnosť jeho informačných systémov. Sprostredkovateľ bude s osobnými údajmi dotknutej osoby zaobchádzať a nakladať v súlade s platnými a účinnými právnymi predpismi.

Súhlas so spracovaním osobných údajov

1.BCR Newsletter



Overený člen Združenia realitných kancelárií Slovenska RU

Od roku 2015 sme vašim dôveryhodným partnerom v Bratislave s vyše 500 úspešnými transakciami. Ponúkame kompletný realitný servis - od trhovej analýzy až po hypotekárne poradenstvo. V našom tíme panuje rodinná atmosféra a etika je na prvom mieste. Sme hrdými členmi ZRKS a Realitnej únie SR. Vyskúšajte nás a zažite reality srdcom!


Súhlas so spracovaním osobných údajov

Dotknutá osoba v súlade s príslušnými ustanoveniami zákona č. 18/2018 Z.z. o ochrane osobných údajov a o zmene a doplnení niektorých zákonov v znení neskorších predpisov (ďalej len ,,ZoOOÚ“) potvrdzuje správnosť a aktuálnosť svojich osobných údajov uvedených v kontaktom formulári. Dotknutá osoba týmto čestne vyhlasuje, že udeľuje prevádzkovateľovi svoj výslovný, slobodný, vážny a bezvýhradný súhlas so spracúvaním jej osobných údajov v rozsahu: meno, priezvisko, telefonický kontakt, e-mailová adresa na účel kontaktovania dotknutej osoby ako záujemcu o spoluprácu v informačnom systéme sprostredkovateľa ,,klienti“ počas doby 180 dní od udelenia tohto súhlasu. Dotknutá osoba má právo kedykoľvek odvolať tento súhlas so spracovaním osobných údajov rovnakým spôsobom, akým ho udelila. Odvolanie súhlasu nemá vplyv na zákonnosť spracúvania osobných údajov založeného na súhlase pred jeho odvolaním. Práva dotknutej osoby vymedzujú najmä §§ 19 – 30 ZoOOÚ. Práva a povinnosti sprostredkovateľa, ako prevádzkovateľa, vymedzujú najmä §§ 31 – 46 ZoOOÚ. Dotknutá osoba potvrdzuje, že sprostredkovateľ splnil svoju oznamovaciu povinnosť v rozsahu požadovanom ZoOOÚ. Dotknutá osoba berie na vedomie, že na zabezpečenie toho, že spracúvanie jej osobných údajov sa vykonáva v súlade so ZoOOÚ sprostredkovateľ prijal primerané technické, organizačné a personálne opatrenia zodpovedajúce spôsobu spracúvania osobných údajov, pričom zobral do úvahy najmä použiteľné technické prostriedky, dôvernosť a dôležitosť spracúvaných osobných údajov, ako aj rozsah možných rizík, ktoré sú spôsobilé narušiť bezpečnosť alebo funkčnosť jeho informačných systémov. Sprostredkovateľ bude s osobnými údajmi dotknutej osoby zaobchádzať a nakladať v súlade s platnými a účinnými právnymi predpismi.